

















Код товара:
Н12513Артикул:
Н12513UPC:
Н12513Наличие:
Нет в наличииЭлектрический котел Midea (Мидеа) MEB 5-12 VOLTA является надежным и экономичным способом обогрева дома или квартиры. Компактные габариты, энергоэффективность, удобное управление и работа от разных электросетей делают модель идеальной для любого помещения. Для нагрева воды в бойлере можно установить трехходовой клапан.
Особенности и преимущества:
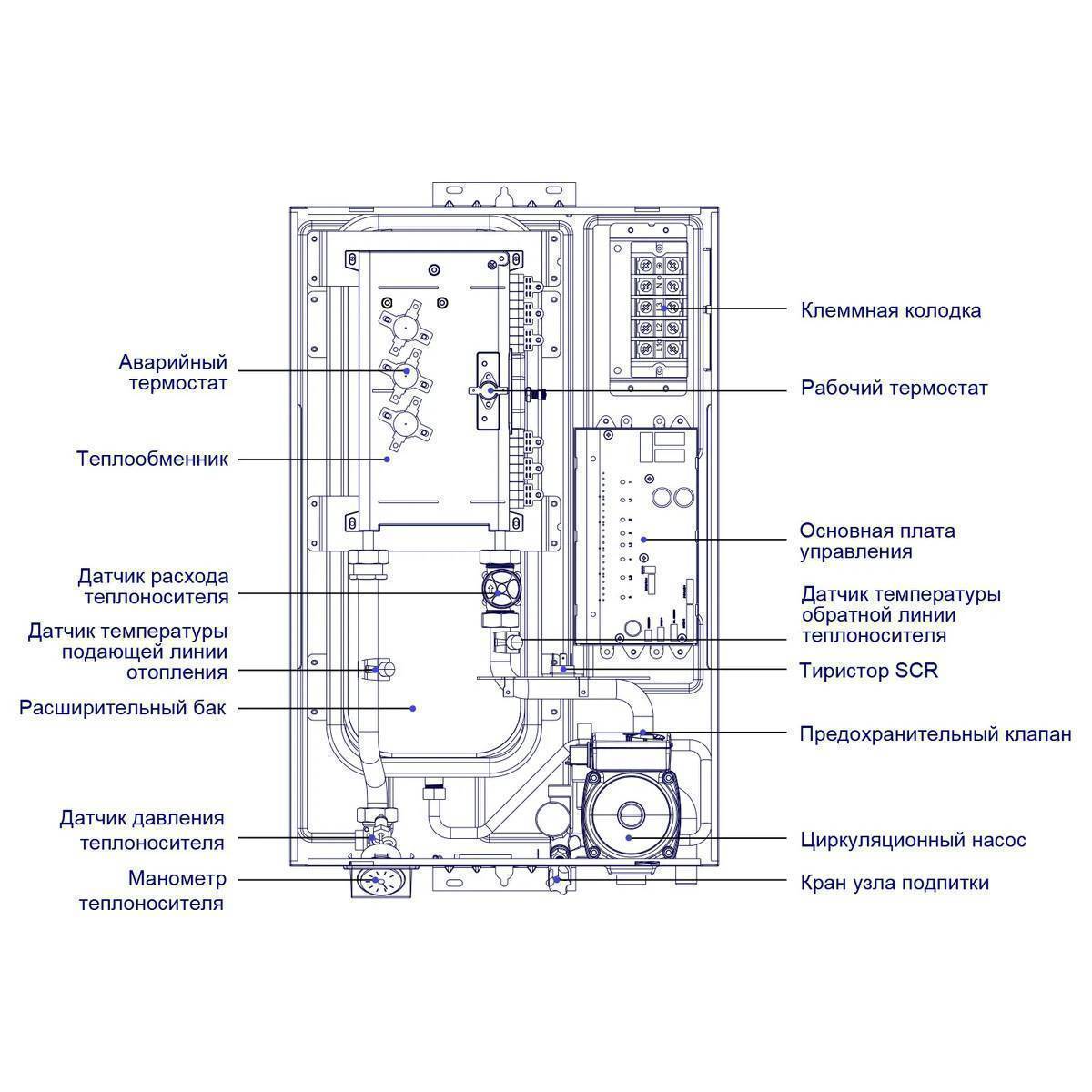
Одноконтурный электрический котёл;
Изменяемая мощность 5,8,10,12 кВт переключателями на электронной плате*;
Работа от 220/380В;
Теплообменник изготовлен по новой технологии литья из алюминиево-магниевого сплава для разделения воды и нагревательного элемента;
Работает с Алисой и Google ассистент;
Теплообменник защищен от накипи на нагревательном элементе;
Сенсорная панель управления;
Wi-fi управление в базовом исполнении при помощи приложения;
Циркуляционный насос Grundfos;
Симисторное управление мощностью котла;
Системы автоматики;
Готовые сценарии отопления (дневной, ночной);
Турбинный датчик расхода теплоносителя;
Датчики температуры теплоносителя на подаче и обратке;
Самодиагностика и многоступенчатая система безопасности;
2-х уровневая защита от замерзания;
Сервисное меню для тонкой адаптации котла;
Низкий уровень шума (40 дБ);
2 года гарантии, теплообменник 4 года;
Возможность нагрева бойлера косвенного нагрева для ГВС при помощи 3-х ходового клапана (опция);
*Выбор максимальной мощности осуществляется при монтаже и настройке прибора
MEB VOLTA серия электрических котлов отопления торгового бренда Midea представлена одноконтурными, энергозависимыми моделями с возможностью регулировки мощностей. Современные устройства оснащены циркуляционным насосом, расширительным баком, а для применения в системе горячего водоснабжения можно применить трехходовой клапан и подключить бойлер.
Документация
Сертификат
Презентация по электрическим котлам
Отзывов: 0
Нет отзывов об этом товаре.