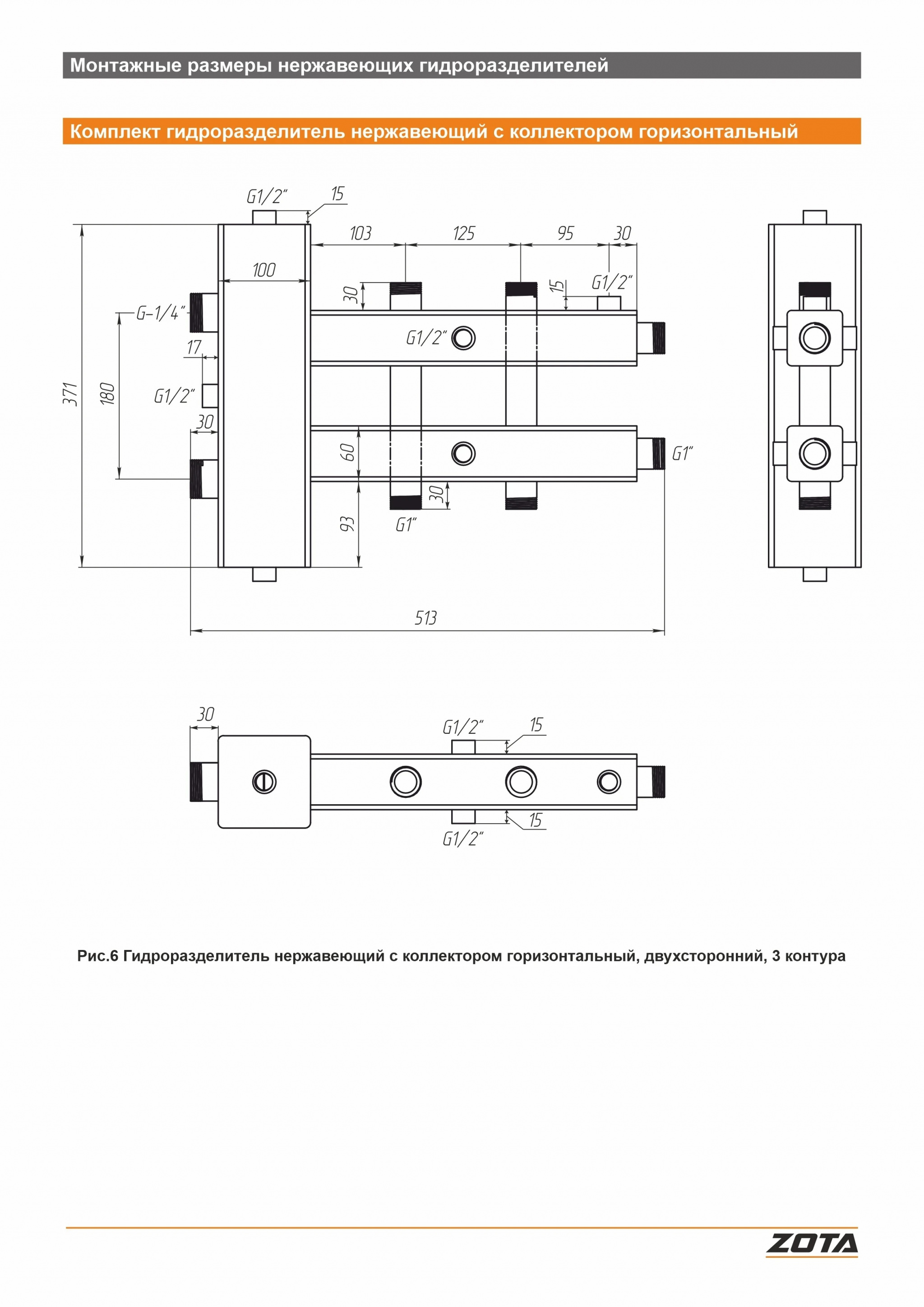
Страна производства: Россия, Модель: Коллекторный двусторонний, 3 контура, Артикул: 00-00001653.
Материал теплообменника
Сталь
Характеристики товара
мощность, кВт
100000
Отзывов: 0
Нет отзывов об этом товаре.
